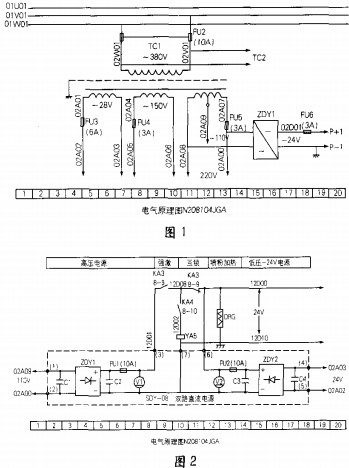
一臺J2108機電氣柜變壓器突然起火,發現時變壓器接頭已燒損,變壓器燒壞,其余尚好,因發現及時,未出現其他較大損壞及異常情況,維修時發現28V抽頭處(FU3)熔體已熔斷,抽頭FU5已熔斷,如圖1所示。查相關元器件均完好,如圖2所示.02A02-02A03線至整流器流堆后,給噴粉加熱,查相關線路及加熱絲等沒有出現短路及接地短路,整流堆未壞,02A00-02A08線路給紙收紙及主電機運行等也未發現異常,02A09和02A07線至整流橋堆后由KA3控制YA5電磁鐵,查電磁鐵YA5和整流堆及線路等也未發現異常,另02A05和020A06線是PLL電源線,也未發現異常。于是,先懷疑是過載,測其他元器件阻值也正常(由其他08機測量得知),則推斷為變壓器絕緣下降后.一直工作引起(本廠生產任務重,一天機器工作20小時)。但安裝新變壓器,送電后電氣柜又立即冒煙,關閉電源檢查線路未接錯,且相關熔體也未熔斷。后去除外接線,依次試驗檢查,發現S01(手盤車處行程開關)一側220V主電機制動器控制開關由于液體浸入,使塑料絕緣不良.竄入另一側的24V停鎖線,導致變壓器起火且躲過相關熔體保護而引起火災。
手盤車處行程開關引起絕緣下降的原因為機臺踏板上放了一桶調配好的潤版液,由于加水時不注意,部分水通過踏板滲到此開關引起火災。

所幸發現及時,未引起較大的財產損失,但此事件也給我們一個教訓,故我廠對水、汽油、潤版液等的管理更加規范和嚴格,到今天為止已近一年了未發生事故,特此也提醒各位同行。
三門峽富通新能源可以根據用戶的需求定做各種類型的高低壓配電柜。(鞏義配電柜定做、三門峽配電柜定做、洛陽配電柜定做、鄭州配電柜定做)